2pok, 49met, okolice Paryskiej BALKON/PARKING/2022 (Wrocław)

2pok, 49met, okolice Paryskiej BALKON/PARKING/2022 (Wrocław) Wrocław - Zakrzów - Zdjęcie 1
2pok, 49met, okolice Paryskiej BALKON/PARKING/2022 (Wrocław)
Cena: 700 000 zł
Jasne, przestronne mieszkanie 2-pokojowe | Nova Stoczniova, Zakrzów
Na sprzedaż funkcjonalne i komfortowe mieszkanie położone na 2. piętrze kameralnego, dwukondygnacyjnego budynku na nowoczesnym osiedlu Nova Stoczniova we Wrocławiu. Inwestycja oddana w styczniu 2022 roku.
Mieszkanie wyróżnia się wysokim komfortem, prywatnością i niską zabudową. Z okien i balkonu roztacza się widok na zieleń – drzewa rosną tuż przy oknach. Ekspozycja zachodnia zapewnia naturalne światło przez cały dzień.
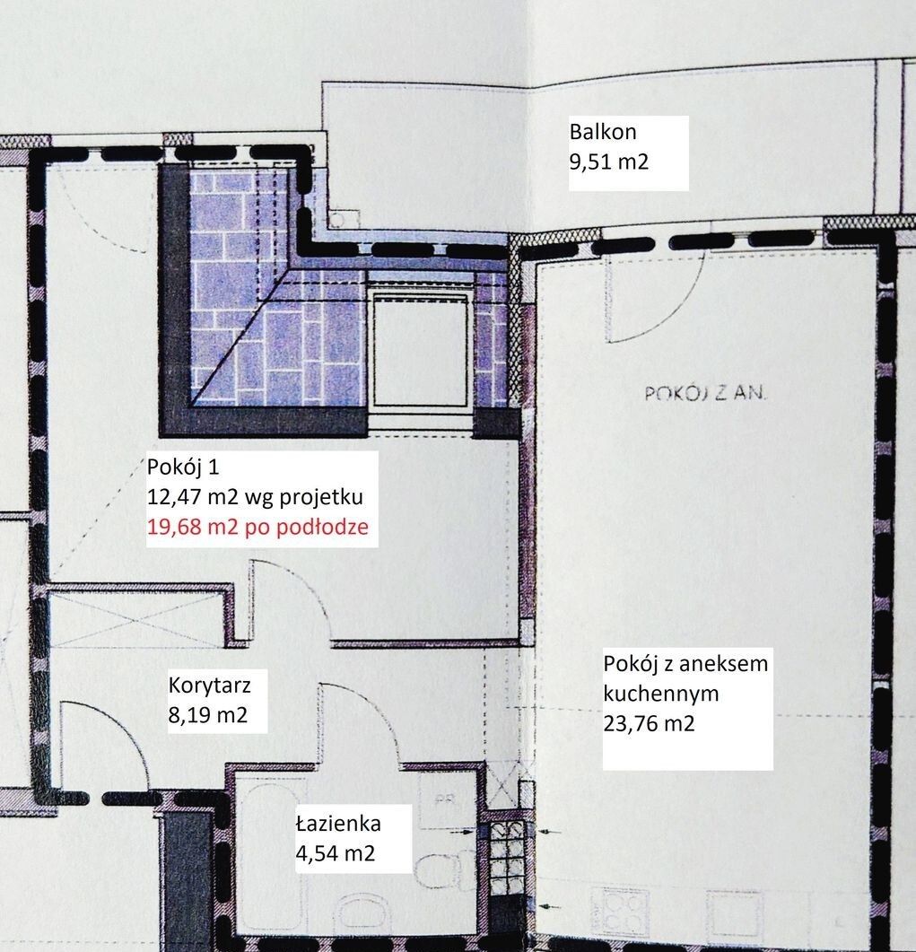
Metraż i układ mieszkania:

Powierzchnia użytkowa: 48,96 m²
Powierzchnia po podłodze: ponad 56 m² (dzięki skosom mieszkanie oferuje znacznie więcej przestrzeni niż w dokumentach)

Rozkład:

Sypialnia: 12,47 m² (ok. 19,68 m² po podłodze)
Salon z aneksem kuchennym: 23,76 m²
Korytarz: 8,19 m² – duża przestrzeń do przechowywania
Łazienka: 4,54 m²
Balkon: 9,51 m²

Standard i wykończenie:

Mieszkanie w pełni gotowe do zamieszkania, bez potrzeby remontu
Funkcjonalny układ, dużo miejsca do przechowywania
Drewniane blaty kuchenne i elementy mebli z litego drewna
Kanapa z tkaniny odpornej na zwierzęta (w mieszkaniu nigdy nie było zwierząt)
Zamknięty, monitorowany parking na terenie osiedla
Zadbane, zielone części wspólne

Lokalizacja i otoczenie:

Doskonała komunikacja:
Przystanki autobusowe: Zakrzów 5 min, Os. Sobieskiego 10 min
Stacja kolejowa Wrocław Zakrzów 8 min pieszo
Sklepy i usługi: Żabka (5 min), Biedronka (10 min), Lidl (15 min), apteki, szkoły, żłobki, 3 przedszkola w promieniu 5 minut
Aktywność i rekreacja: Aquapark Zakrzów 15 min, Wrocławska Arena Sportu (boiska, pumptrack, place zabaw), CitySports (squash, badminton, fitness), wały nad rzeką Dobrą ok. 1 km, Park Pawłowicki 10 min rowerem
Zakupy i rozrywka: CH Korona i CH Młyn 7 min samochodem
Szybki zjazd na obwodnicę Wrocławia

Podsumowanie: To mieszkanie to idealne połączenie komfortu, nowoczesnego wykończenia i spokojnej lokalizacji, a jednocześnie blisko miasta. Doskonałe dla osób szukających własnego mieszkania gotowego do wprowadzenia, jak i dla inwestorów pod wynajem.


Interesuje Cię zakup tego mieszkania?
ZADZWOŃ! 724001956
Agent prowadzący: Eliza Suchojad
e-mail: eliza.suchojad@homeexpert.pl
ul. Inżynierska 49 / U25, 53-228 Wrocław
Numer oferty: 20778/3584/OMS
Miejsce: okolice Paryskiej , Wrocław - Zakrzów,
Ofertę składa: Pośrednik
Nazwa firmy: Home Expert
Rynek: Wtórny (lokal używany)
Pow. mieszkania [metry]: 49 m2
Liczba pokoi: 2 pok.
Stan lokalu: Bardzo dobry
Typ balkonu: Balkon
Kuchnia: Aneks kuchenny
Piętro: 2 piętro
Wyposażenie mieszkania: Lokal umeblowany
Droga: Asfaltowa
Więcej na stronie www:
2pok, 49met, okolice Paryskiej BALKON/PARKING/2022 (Wrocław) Wrocław - Zakrzów - Obraz nr 1 2pok, 49met, okolice Paryskiej BALKON/PARKING/2022 (Wrocław) Wrocław - Zakrzów - Obraz nr 2 2pok, 49met, okolice Paryskiej BALKON/PARKING/2022 (Wrocław) Wrocław - Zakrzów - Obraz nr 3 2pok, 49met, okolice Paryskiej BALKON/PARKING/2022 (Wrocław) Wrocław - Zakrzów - Obraz nr 4 2pok, 49met, okolice Paryskiej BALKON/PARKING/2022 (Wrocław) Wrocław - Zakrzów - Obraz nr 5 2pok, 49met, okolice Paryskiej BALKON/PARKING/2022 (Wrocław) Wrocław - Zakrzów - Obraz nr 6 2pok, 49met, okolice Paryskiej BALKON/PARKING/2022 (Wrocław) Wrocław - Zakrzów - Obraz nr 7 2pok, 49met, okolice Paryskiej BALKON/PARKING/2022 (Wrocław) Wrocław - Zakrzów - Obraz nr 8 2pok, 49met, okolice Paryskiej BALKON/PARKING/2022 (Wrocław) Wrocław - Zakrzów - Obraz nr 9 2pok, 49met, okolice Paryskiej BALKON/PARKING/2022 (Wrocław) Wrocław - Zakrzów - Obraz nr 10 2pok, 49met, okolice Paryskiej BALKON/PARKING/2022 (Wrocław) Wrocław - Zakrzów - Obraz nr 11 2pok, 49met, okolice Paryskiej BALKON/PARKING/2022 (Wrocław) Wrocław - Zakrzów - Obraz nr 12 2pok, 49met, okolice Paryskiej BALKON/PARKING/2022 (Wrocław) Wrocław - Zakrzów - Obraz nr 13

Kontakt z ogłoszeniodawcą

Nr ogłoszenia: 698906

Telefon: (Pokaż telefon)
E-mail: (Pokaż e-mail)

Dodano dnia:

Aktualizacja: 17.04.2026r

Ilość wyświetleń:

Wyślij e-mail:

Inne ogłoszenia tego użytkownika:

Nowe ogłoszenia na e-mail

Powiadomienia o nowych ofertach na skrzynę pocztową.
Zgadzam się

Szanowni Państwo

W związku z rozporządzeniem RODO informujemy Cię o przetwarzaniu Twoich danych osobowych oraz zasadach na jakich będzie się to odbywało i celach ich przetwarzania.
Prosimy o wyrażenie zgody na przetwarzanie danych przez nas i przez naszych "Zaufanych Partnerów" poprzez kliknięcie w guzik "zgadzam się".

Kto będzie administratorem Twoich danych? Administratorem danych będzie Larete Dariusz Husak, ul. Obrońców Poczty Gdańskiej 6/8, 35-232 Rzeszów jak również nasi "Zaufani Parnerzy" czyli podmioty, z którymi stale współpracujemy w celu świadczenia usług, wyświetlania reklam i zbierania danych statystycznych.

Jakie dane osobowe przetwarzamy i jaki jest cel przetwarzania? Przetwarzamy dane, które podajesz lub pozostawiasz w ramach korzystania serwisu:
- Dane niezbędne do świadcznia usługi polegającej na dodaniu ogłoszenia, kontaktu z ogłoszeniodawcą,
- Dane niezbędne do obsługi płatności i wystawieniu faktur,
- Dane zapisywane w plikach cookies, pozwalające na personalizację reklam oraz analizowania ruchu na stronach i śledzenie użytkownika.

Jakie masz prawa w stosunku do Twoich danych? Masz prawo do żądania dostępu do zgromadzonych danych, sprostowania, usunięcia lub ograniczenia ich przetwarzania i prawo do zapomnienia. Możesz także wycofać zgodę na przetwarzanie danych osobowych, zgłosić sprzeciw oraz skorzystać z innych praw wymienionych szczegółowo w polityce prywatności.

Pliki cookies Pliki cookies możesz otrzymać od nas jak i od naszych Zaufanych Partnerów. Możesz je wyłączyć w ustawieniach przeglądarki. Dalsze korzystanie z witryny bez zmiany ustawień oznacza wyrażenie zgody na korzystanie z plików cookies otrzymanych od nas jak i naszych partnerów.

Wycofanie zgody Swoją zgodę możesz zawsze wycofać na stronach "Polityki prywatności", tam także znajdziesz listę "Partnerów zaufanych".

Wyrażenie Zgody Wyrażnie zgody na wskazane poniżej działania odbywa się poprzez kliknięcie w przycisk "Zgadzam się" lub "Zagadzam się ✓" i zamknięcie okna.

>> Ustawienia zaawansowane <<

W poniższych ustawieniach mogą Państwo wybrać czy wyrażacie zgodę na instlowanie ciasteczek dostarczanych przez naszych partnerów i kod śledzenia.
Prosimy o wyrażenie zgody na świadczone przez nas i przez naszych partnerów.

Netsprint S.A. Zgadzam się na przechowywanie w moim urządzeniu plików cookies, jak też na przetwarzanie w celach marketingowych, w tym profilowania, moich danych osobowych pozostawianych przeze mnie w ramach korzystania ze stron internetowych, serwisów i innych funkcjonalności zapisywanych w tych plikach cookies przez Wydawcę i "Zaufanych partnerów". Wyrażam zgodę na udostępnianie moich danych osobowych pozostawianych przeze mnie w ramach korzystania ze stron internetowych, serwisów i innych funkcjonalności zapisywanych w tych plikach cookies, przez Wydawcę i Zaufanych partnerów innym administratorom zainteresowanym marketingiem swoich produktów lub usług (reklamodawcom).

Adsense Korzystamy z Google Adsense. Jest to usługa, która wyświetla reklamy na naszych stronach. Reklamy mogą być emitowane jako spersonalizowane (dostosowane do Twoich zainteresowanań) jak i niespersonalizowane. Na te pierwsze musisz wyrazić zgodę, jeżeli się nie zgadzasz adsense wyświetli Ci reklamy losowe.

Zapisz ustawienia
Zgadzam się