3pok, 77met, Okolice Kawalerzystów BALKON/PIWNICA/2006 (Wrocław)

3pok, 77met, Okolice Kawalerzystów BALKON/PIWNICA/2006 (Wrocław) Wrocław - Partynice - Zdjęcie 1
3pok, 77met, Okolice Kawalerzystów BALKON/PIWNICA/2006 (Wrocław)
Cena: 950 000 zł
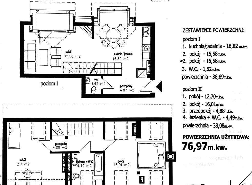
Zapraszam do odkrycia wyjątkowej oferty sprzedaży mieszkania o powierzchni 76,97 m², położonego w atrakcyjnej lokalizacji na Wrocławskich Krzykach, w malowniczej dzielnicy Partynice. To doskonała propozycja dla osób poszukujących komfortu oraz nowoczesnych rozwiązań w dobrze skomunikowanej okolicy.


Mieszkanie usytuowane jest na drugim piętrze w kamienicy wybudowanej w 2006 roku. Charakteryzuje się funkcjonalnym rozkładem pomieszczeń, które obejmują trzy przestronne pokoje oraz aneks kuchenny, idealny do wspólnego gotowania i spędzania czasu z rodziną. Wnętrze jest w dobrym stanie, gotowe do natychmiastowego zamieszkania, co z pewnością spodoba się przyszłym właścicielom.


Warto również zwrócić uwagę na atuty tej nieruchomości. Mieszkanie posiada drewniane okna nowego typu, które nie tylko doskonale doświetlają przestrzeń, ale także zapewniają wysoką izolację. Dodatkowo, do dyspozycji mieszkańców pozostaje piwnica, która pomieści wszelkie niezbędne przedmioty. Przestronny balkon stanowi idealne miejsce do relaksu, gdzie można podziwiać piękno okolicy.


Ogrzewanie mieszkania jest zapewnione przez własne centralne ogrzewanie, co wpływa na komfort użytkowania oraz koszty eksploatacyjne. Czynsz wynosi tylko 1000 zł, co czyni tę ofertę jeszcze bardziej atrakcyjną.


Lokalizacja na dolnośląskim Wrocławiu, w dzielnicy Krzyki, zapewnia dogodny dostęp do pełnej infrastruktury – szkół, sklepów oraz terenów zielonych. To miejsce, które łączy zalety życia w mieście z urokami bliskiej natury.


Nie przegap okazji na zamieszkanie w tym wyjątkowym miejscu! Zadzwoń, umów się na prezentację i przekonaj się, jak wiele może Ci zaoferować to mieszkanie!


To miejsce może być Twoim nowym domem!


CENA: 950 000 zł


Interesuje Cię zakup tego mieszkania?
ZADZWOŃ! 699 041 853 (tel. preferowany - zawsze dostępny)
Agent prowadzący : Maksym Rzewuski
e-mail: maksym.rzewuski@homeexpert.pl
Agencja Nieruchomości HOME EXPERT
ul. Inżynierska 49 / U25 (na parterze w biurowcu CORTE VERONA)
53-228 Wrocław
Numer oferty: 19991/3584/OMS
Miejsce: Okolice Kawalerzystów , Wrocław - Partynice,
Ofertę składa: Pośrednik
Nazwa firmy: Home Expert
Rynek: Wtórny (lokal używany)
Pow. mieszkania [metry]: 77 m2
Liczba pokoi: 3 pok.
Stan lokalu: Bardzo dobry
Typ balkonu: Balkon
Kuchnia: Aneks kuchenny
Piętro: 2 piętro
Wyposażenie mieszkania: Lokal umeblowany
Droga: Asfaltowa
Więcej na stronie www:
3pok, 77met, Okolice Kawalerzystów BALKON/PIWNICA/2006 (Wrocław) Wrocław - Partynice - Obraz nr 1 3pok, 77met, Okolice Kawalerzystów BALKON/PIWNICA/2006 (Wrocław) Wrocław - Partynice - Obraz nr 2 3pok, 77met, Okolice Kawalerzystów BALKON/PIWNICA/2006 (Wrocław) Wrocław - Partynice - Obraz nr 3 3pok, 77met, Okolice Kawalerzystów BALKON/PIWNICA/2006 (Wrocław) Wrocław - Partynice - Obraz nr 4 3pok, 77met, Okolice Kawalerzystów BALKON/PIWNICA/2006 (Wrocław) Wrocław - Partynice - Obraz nr 5 3pok, 77met, Okolice Kawalerzystów BALKON/PIWNICA/2006 (Wrocław) Wrocław - Partynice - Obraz nr 6 3pok, 77met, Okolice Kawalerzystów BALKON/PIWNICA/2006 (Wrocław) Wrocław - Partynice - Obraz nr 7 3pok, 77met, Okolice Kawalerzystów BALKON/PIWNICA/2006 (Wrocław) Wrocław - Partynice - Obraz nr 8 3pok, 77met, Okolice Kawalerzystów BALKON/PIWNICA/2006 (Wrocław) Wrocław - Partynice - Obraz nr 9 3pok, 77met, Okolice Kawalerzystów BALKON/PIWNICA/2006 (Wrocław) Wrocław - Partynice - Obraz nr 10 3pok, 77met, Okolice Kawalerzystów BALKON/PIWNICA/2006 (Wrocław) Wrocław - Partynice - Obraz nr 11 3pok, 77met, Okolice Kawalerzystów BALKON/PIWNICA/2006 (Wrocław) Wrocław - Partynice - Obraz nr 12 3pok, 77met, Okolice Kawalerzystów BALKON/PIWNICA/2006 (Wrocław) Wrocław - Partynice - Obraz nr 13 3pok, 77met, Okolice Kawalerzystów BALKON/PIWNICA/2006 (Wrocław) Wrocław - Partynice - Obraz nr 14 3pok, 77met, Okolice Kawalerzystów BALKON/PIWNICA/2006 (Wrocław) Wrocław - Partynice - Obraz nr 15 3pok, 77met, Okolice Kawalerzystów BALKON/PIWNICA/2006 (Wrocław) Wrocław - Partynice - Obraz nr 16 3pok, 77met, Okolice Kawalerzystów BALKON/PIWNICA/2006 (Wrocław) Wrocław - Partynice - Obraz nr 17 3pok, 77met, Okolice Kawalerzystów BALKON/PIWNICA/2006 (Wrocław) Wrocław - Partynice - Obraz nr 18 3pok, 77met, Okolice Kawalerzystów BALKON/PIWNICA/2006 (Wrocław) Wrocław - Partynice - Obraz nr 19 3pok, 77met, Okolice Kawalerzystów BALKON/PIWNICA/2006 (Wrocław) Wrocław - Partynice - Obraz nr 20

Kontakt z ogłoszeniodawcą

Nr ogłoszenia: 686143

Telefon: (Pokaż telefon)
E-mail: (Pokaż e-mail)

Dodano dnia:

Aktualizacja: 06.10.2025r

Ilość wyświetleń:

Wyślij e-mail:

Inne ogłoszenia tego użytkownika:

Nowe ogłoszenia na e-mail

Powiadomienia o nowych ofertach na skrzynę pocztową.
Zgadzam się

Szanowni Państwo

W związku z rozporządzeniem RODO informujemy Cię o przetwarzaniu Twoich danych osobowych oraz zasadach na jakich będzie się to odbywało i celach ich przetwarzania.
Prosimy o wyrażenie zgody na przetwarzanie danych przez nas i przez naszych "Zaufanych Partnerów" poprzez kliknięcie w guzik "zgadzam się".

Kto będzie administratorem Twoich danych? Administratorem danych będzie Larete Dariusz Husak, ul. Obrońców Poczty Gdańskiej 6/8, 35-232 Rzeszów jak również nasi "Zaufani Parnerzy" czyli podmioty, z którymi stale współpracujemy w celu świadczenia usług, wyświetlania reklam i zbierania danych statystycznych.

Jakie dane osobowe przetwarzamy i jaki jest cel przetwarzania? Przetwarzamy dane, które podajesz lub pozostawiasz w ramach korzystania serwisu:
- Dane niezbędne do świadcznia usługi polegającej na dodaniu ogłoszenia, kontaktu z ogłoszeniodawcą,
- Dane niezbędne do obsługi płatności i wystawieniu faktur,
- Dane zapisywane w plikach cookies, pozwalające na personalizację reklam oraz analizowania ruchu na stronach i śledzenie użytkownika.

Jakie masz prawa w stosunku do Twoich danych? Masz prawo do żądania dostępu do zgromadzonych danych, sprostowania, usunięcia lub ograniczenia ich przetwarzania i prawo do zapomnienia. Możesz także wycofać zgodę na przetwarzanie danych osobowych, zgłosić sprzeciw oraz skorzystać z innych praw wymienionych szczegółowo w polityce prywatności.

Pliki cookies Pliki cookies możesz otrzymać od nas jak i od naszych Zaufanych Partnerów. Możesz je wyłączyć w ustawieniach przeglądarki. Dalsze korzystanie z witryny bez zmiany ustawień oznacza wyrażenie zgody na korzystanie z plików cookies otrzymanych od nas jak i naszych partnerów.

Wycofanie zgody Swoją zgodę możesz zawsze wycofać na stronach "Polityki prywatności", tam także znajdziesz listę "Partnerów zaufanych".

Wyrażenie Zgody Wyrażnie zgody na wskazane poniżej działania odbywa się poprzez kliknięcie w przycisk "Zgadzam się" lub "Zagadzam się ✓" i zamknięcie okna.

>> Ustawienia zaawansowane <<

W poniższych ustawieniach mogą Państwo wybrać czy wyrażacie zgodę na instlowanie ciasteczek dostarczanych przez naszych partnerów i kod śledzenia.
Prosimy o wyrażenie zgody na świadczone przez nas i przez naszych partnerów.

Netsprint S.A. Zgadzam się na przechowywanie w moim urządzeniu plików cookies, jak też na przetwarzanie w celach marketingowych, w tym profilowania, moich danych osobowych pozostawianych przeze mnie w ramach korzystania ze stron internetowych, serwisów i innych funkcjonalności zapisywanych w tych plikach cookies przez Wydawcę i "Zaufanych partnerów". Wyrażam zgodę na udostępnianie moich danych osobowych pozostawianych przeze mnie w ramach korzystania ze stron internetowych, serwisów i innych funkcjonalności zapisywanych w tych plikach cookies, przez Wydawcę i Zaufanych partnerów innym administratorom zainteresowanym marketingiem swoich produktów lub usług (reklamodawcom).

Adsense Korzystamy z Google Adsense. Jest to usługa, która wyświetla reklamy na naszych stronach. Reklamy mogą być emitowane jako spersonalizowane (dostosowane do Twoich zainteresowanań) jak i niespersonalizowane. Na te pierwsze musisz wyrazić zgodę, jeżeli się nie zgadzasz adsense wyświetli Ci reklamy losowe.

Zapisz ustawienia
Zgadzam się